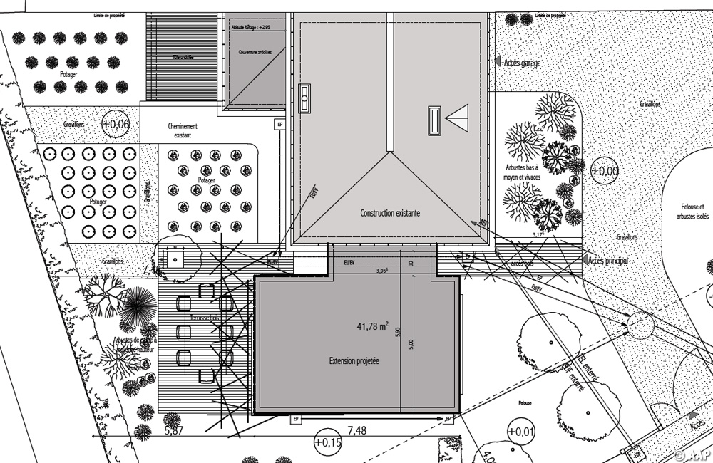
Ajout d’un grand séjour au niveau et en lien direct avec le jardin. Une nouvelle terrasse dans le prolongement de l’extension offre un espace extérieur pour la saison estivale et recompose la partie arrière du jardin en potager. En ossature et revêtement bois, l’extension s’intègre discrètement à la végétation environnante.
Maître d’ouvrage : privé
Mission : complète